Sestri Levante – 4 locali € 165.000 T440

  • 165.000€
Via monsignore Salvatore Vattuone, Sestri Levante, Genova, Liguria, 16039, Italia
  • Appartamento
  • Tipologia di immobile
  • 2
  • Camere da letto
  • No
  • Garages
  • 87
  • Mq
Via monsignore Salvatore Vattuone, Sestri Levante, Genova, Liguria, 16039, Italia
  • 165.000€

Panoramica

ID Immobile: T440
  • Appartamento
  • Tipologia di immobile
  • 2
  • Camere da letto
  • No
  • Garages
  • 87
  • Mq

Descrizione

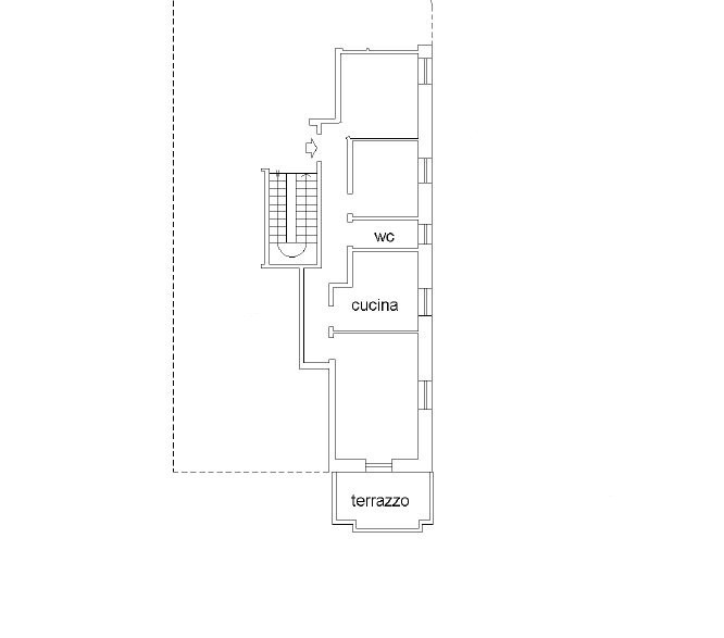
Sestri Levante – San Bartolomeo, in centro, proponiamo un appartamento di 87 mq caratterizzato da spazi ampi e ben proporzionati.
La zona giorno offre una cucina con living open space e una grande sala con accesso diretto all’ampia terrazza, ideale per pranzi all’aperto o momenti di relax.
La zona notte comprende due camere matrimoniali e un bagno finestrato. La disposizione interna risulta molto funzionale, con ambienti accoglienti e facilmente valorizzabili.
Una soluzione comoda e versatile, perfetta come abitazione principale o casa per le vacanze, a pochi minuti dal mare e dai principali servizi.
La richiesta è di euro 165.000,00 RIF. SL 232

  • Indirizzo Via Monsignor Salvatore Vattuone, Sestri Levante
  • Città Sestri Levante
  • CAP 16039

Dettagli

Aggiornato su Novembre 4, 2025 a 2:34 pm
  • ID Immobile: T440
  • Prezzo: 165.000€
  • Dimensione immobile: 87 Mq
  • Camere da letto: 2
  • Stanze: 4
  • Garages: No
  • Tipologia di immobile: Appartamento
  • Stato immobile: Vendita

Caratteristiche

Planimetria

image

Descrizione:

image

Descrizione:

Calcolo Mutuo

Rata mensile
  • Rata mensile
%

informazioni di contatto

Visualizza immobili
Norero Immobiliare
  • Norero Immobiliare

Richiedi informazioni su questa proprietà

Confronta gli annunci

Confrontare
Norero Immobiliare
  • Norero Immobiliare